ALUMARK F50 - в стиле европейских традиций
Компания ТБМ много лет работает на рынке комплектующих для алюминиевых конструкций и является эксклюзивным поставщиком строительной алюминиевой системы GUTMANN. На основании анализа потребности Клиентов специалисты Компании ТБМ совместно с немецкими конструкторами создали новый качественный и современный продукт специально для Российского рынка - алюминиевую систему ALUMARK.
Работа по созданию ALUMARK велась совместно с немецкими экспертами, имеющими большой опыт в разработке строительных систем. Основная задача, стоявшая перед разработчиками,-стремление соединить все инновационные решения в области остекления фасадов с предпочтениями российских потребителей, учитывая при этом климатические особенности нашей страны и требования нормативных документов РФ.
В результате совместных усилий разработанная система ALUMARK обладает следующими конкурентными преимуществами:
-
технологичность;
-
отличные технические характеристики, в первую очередь теплотехнические; европейское качество;
-
надежность, высокая герметичность;
-
низкая металлоемкость, при сохранении высоких статических показателей.
По данным опросов, российские производители светопрозрачных конструкций при выборе систем и комплектующих большое внимание уделяют оптимальному соотношению между ценой и качеством. Следуя этим требованиям рынка, алюминиевый профиль производится на ведущих заводах России, а комплектующие поставляются из Европы. Данный подход позволяет добиться высокого качества готовых конструкций, сопоставимого с лучшими мировыми разработками.
Выбирая ALUMARK, российские производители получат европейскую, качественную, надежную строительную алюминиевую систему по приемлемой цене.
Вместе с системой ALUMARK Компания ТБМ рада предложить своим Клиентам широкий ассортимент комплектующих и фурнитуры для производства окон, дверей и набор сервисных услуг, среди которых комплектование в минимальные сроки, окраска профиля в необходимый цвет по каталогу RAL, бесплатная доставка, техническое сопровождение, программное обеспечение для производства свето-прозрачных конструкций и т.д.
Специалисты Компании ТБМ уверены, что система ALUMARK займет достойное место на рынке России и будет высоко оценена клиентами.
Система прошла все необходимые лабораторные испытания в аккредитованных российских и зарубежных испытательных центрах, их результаты подтвердили полное соответствие, как отечественным ГОСТам, так и европейским стандартам DIN. Получены протоколы испытаний, разработаны и утверждены Технические Условия, что позволит производителю без сложностей сдать службе Заказчика готовые конструкции любого типа, изготовленные из строительной алюминиевой системы ALUMARK.
F50
Общие данные
1. Техническая характеристика системы.
Назначение системы «F50 ALUMARK» - система алюминиевых профилей с термоизолятором, предназначена для изготовления вертикальных и наклонных фасадов различной степени сложности. Информация по системе представлена в 2-х каталогах: «Каталог алюминиевых профилей для фасадных конструкций серии F50. ALUMARK Архитектурный» - для архитекторов, руководителей проектов, конструкторов и т.д. «Каталог по изготовлению и монтажу фасадных конструкций серии F50. ALUMARK Технологический» - для конструкторов, технологов, сборщиков конструкций и т.д.,
2. Типы конструкций
Система позволяет изготавливать следующие типы алюминиевых конструкций:
- вертикальные фасады: прямой,
- ломаный (наружный и внутренний углы),
- радиусный,
- структурный и полуструктурный.
- наклонные фасады:
- зенитные фонари,
- светопрозрачные кровли, галереи,
- «зимние» сады.
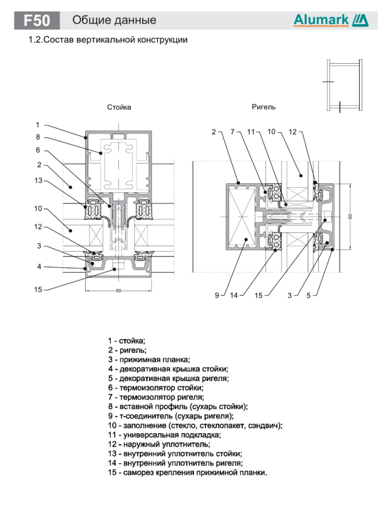
Строительные габариты профилей Видимая ширина профилей - 50 мм, монтажная глубина стоечных и ригельных профилей составляет 35 - 195 мм. Данные размеры обеспечивают необходимую жесткость и функциональность изготавливаемых конструкций. Моменты инерции основных профилей находятся в пределах Ix = 10,8 - 675,4 см*, что позволяет использовать их для изготовления несущих фасадных конструкций. Конструктивные особенности - технические решения удовлетворяют запросам европейских и отечественных архитекторов в полной мере; - при разработке алюминиевой системы F50 учитывалась возможность ее использования как крупными компаниями, обладающими сложным оборудованием, так и небольшими фирмами, у которых ограниченное количество оборудования, поэтому система универсальна и, вне зависимости от оснащенности компании, изготавливающей конструкции, качество изготовления будет на высоком уровне; - достоинством системы является то, что стойка и ригель изготавливаются из одного профиля, не требуется фрезеровка ригеля и дополнительная обработка стойки, что позволяет изготовителю эффективно использовать материал без отходов; - несущие профили имеют радиусы кромок со стороны помещения 0,5 мм, что обеспечивает при одинаковых размерах стойки и ригеля безупречный вид на единую плоскость стыка; - полости стоек и ригелей разработаны с выступами, чтобы облегчить установку вставных профилей для повышения несущей
способности конструкции;
3. F50. Общие данные: Заполнение Оптимальный типоразмерный ряд термоизоляторов высотой 25, 35, 41 мм и внутренних уплотнителей стойки и ригеля позволяют устанавливать стекло, стеклопакеты или глухие панели толщиной от 6 до 40 мм. Заполнение устанавливается на универсальные подкладки и специальные опоры, которые выбираются в зависимости от толщины стеклопакета, а также от его габаритного размера и веса. Максимально допустимая нагрузка на ригель для системного решения - до 320 кг. Технические характеристики По термической изоляции согласно нормам DIN 4108-4 профили классифицируются к группе материалов рамы 1.0 (коэффициент теплоизоляции k = 1,5 - 1,8 W/M K). Класс акустической изоляции 5 по нормам DIN 4109 (коэффициент звукоизоляции в пределах Rw = 29...32 дБ). Коэффициент пропускания воздуха равен а = 0,05 м3 /hm (kp/M3)213 , что соответствует группе нагрузки «С» согласно стандарту DIN 18055. Применяемые сплавы Профили изготавливаются из сплава АД31 по ГОСТ 4784-97 (или из сплава EN AW 6060 согласно европейскому стандарту EN 573-3.1994), предельные отклонения размеров при изготовлении по ГОСТ 22233-2001 (или по DIN 17615). Обработка поверхности Профили могут быть окрашены порошковой краской в электростатическом поле согласно шкале RAL с соблюдением требований GSB. Профили с нанесенным порошковым красителем выдерживаются в сушильной камере при температуре 180-200°С в течение 20 мин. Толщина покрытия зависит от марки красителя и находится в диапазоне 60-120 МкМ. Контроль толщины слоя осуществляется в соответствии с нормами ГОСТ 9.302-88.
